Dream Center
Dream Center Video
About The Dream Center
Why Is It Important?
Who Does It Impact And Why?


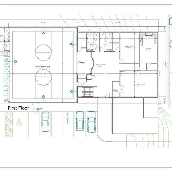
What Is The Dream Center?
We have a vision to create a center that will bring essential services and educational tools to an area that is accessible to all residents. The Dream Center will be the focal point for community building, healthy and safe activity options, educational programming, help build interpersonal communication and early childhood education.
The Dream Center will be a 13,487 sq ft. structure to the northeast side of 1515 Fairfax Ave (BHA Central Office).
Why Is It Important?
We believe this center will…
- Serve as a one-stop center for residents to receive educational, health, and social services.
- Propel us forward in our mission to reimagine public housing
- Provide a safe space for creativity.
- Help close the gap between hopelessness and dreaming and make advancements towards eliminating barriers that plague our community.
Who Does It Impact And Why?
BHA serves a diverse population of the community who are in need of safe, drug free, sanitary housing that is affordable for low-income families who cannot afford to pay market rents.
The impact of our work helps families afford housing and avoid homelessness and other kinds of housing instability. We are reimagining public housing with a “One-Stop” Center that will help close the Gap in services our residents need to grow, dream, play, learn and thrive. If empowered with adequate resources, BHA is strategically positioned to address the funding gaps experienced in providing our residents enrichment, education and activities that are critical to bond a community together.
Safety
Drug Free
Sanitary
Low-Income Families
Growth
Dream
Play
Learn
Thrive
Enrichment
Education
Communal Activity
Be Part of the Dream Center Vision
Help bring lasting change to the Bessemer community through the Dream Center! Your support makes it possible to provide vital educational, recreational, and support services to over 2,000 residents. There are meaningful ways to get involved—make a donation, explore naming opportunities, or become a sponsor. For information contact dreamcenter@besha.org to learn more and make your impact today.

